- 某制冷设备工厂布局规划案例分享
- 来源/作者:博革 发布时间:2025-03-17 10:54:39 浏览次数:
一、项目背景:
某制冷设备能源科技有限公司成立于2022年,是一家专注于工业冷却领域,为新能源、医疗影像、激光技术和储能等工业应用提供集技术方案和咨询、产品设计、生产、销售、项目实施、现场服务和持续性改进和创新为一体的温度和流体管理的全凯发app的解决方案提供。
主要产品:
二、项目现状与要求
01
项目现状
1. 整机装配工位叉车运送,工序间传送不方便
2. 安装水泵,压缩机等重量部件无辅助工装器具,员工作业强度大
3. 工序布局集群式布置,未按工艺流程布局,散乱。导致搬运路线较乱,距离远
4. 生产作业方式不合理,导致作业效率低。
5. 现工厂生产能力约1200台/年。
02
布局要求
1、要减少搬运浪费
2、要降低员工作业强度
3、要降低工序间的传递难度
4、要提高生产作业的整体效率
5、规划要能灵活的应对不同阶段的生产能力(总规划生产能力6000台/年,2年内3000台/年)
三、项目开展
1
制定里程牌计划并与客户确定计划

2
项目前期调查
工艺流程

pq分析:

各工序工时测算及工位计算:

u 电气装配接线工位可2人同时一台机,对面作业,可节省作业空间,年产量达5000台时,最少排10个工位,年产量达3300台时,最少排6个工位,
u 整机装配工位可2人同时一台机,对面作业,可节省作业空间,年产量达5000台时,最少排24个工位,年产量达3300台时,最少排位15个工位,
u 5000台/年,需要生产人力104人,3300台/年,需要生产人力73人。
仓库库位需求测算:


物流分析:


3
问题改善方案确定
管材货架改善

切割台改善:

电控箱作业台改善:

整装线改善:

整装大部件作业强度改善:

管件测试产能增加测试台改善:

线边小件货架改善:

4
布局规划设计:
功能区域确定:

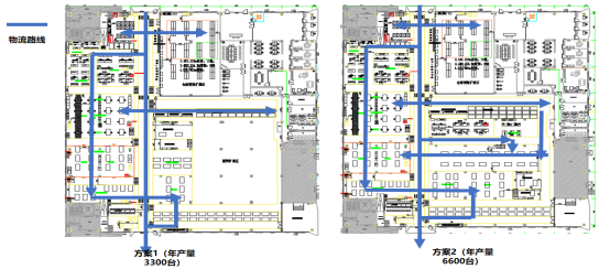
主物流规划:

参观路线规划:

车间详细规划:

物流规划:

四、项目取得的主要效果
1、整机组装采用无动力滚筒装配线,提高传递效率与降低作业强度
2、重量部件采用kbk行吊,降低作业强度,提高作业效率
3、按工艺流程布局,减少搬运距离,结合生产线改善,减少了搬运的频次
4、电控箱改善作业台及改变作业方式,估算效率可升10%-15%。
5、车间按2组线方式布局,在订单变化时可灵活按需开线,减少能耗
作业台规划可四周作业,可按生产需求,灵活调配作业人员,提高生产柔性
工程机械集团供公司精益管理战略案例
在项目落地过程中,博革咨询按照系统诊断、试点推行、树立标杆、快速复制,it固化、系统评价、能力内化等七个步骤对集团公司下属的17个子公司进行推进。 /news/4878.html
某线束工厂装配车间连续流生产线规划案例分享
生产线的升级解决了孤岛式批量生产的方式,实现了连续流生产模式,在线库存金额从60万降为10万,在制品从50000件降至5000件。车间在建设连续流生产方式时,遵循精益生产思想,通过连续流生产 /news/4876.html
某煤机集团防爆车标准化工位建设促进精益现场建设案例
自精益生产开展以来,原小库房存余的各型液压胶管共计2118根,通过统计、甄别、核减,现已消耗938根,核减率达到了44.3%,预计节约成本14万元。 /news/4875.html