- 某电气工厂产线设计与布局规划案例分享
- 来源/作者:博革 发布时间:2025-01-15 11:37:06 浏览次数:
一、项目背景介绍:
公司是中国低压电器领域的领先企业,现拥有3家自有工厂,2家合资工厂。在中国拥有1500名员工,技术研发团队80人,其中博士研究生5人,硕士研究生12人,本科生63人。公司于2005年建立起国内同行业中少有的10ka短路分断实验室,并先后成为德国莱茵tuv集团和荷兰dekra(kema)公司的合作实验室。
产品通过国内、国际多个体系认证,所研发和生产的低压电器产品出口全球120多个国家和地区。
二、项目现状
1. 生产线效率低下,作业人员过多,窝工现象严重
2. 物流路线混乱,在制品大量堆积,现场脏乱差
3. 原始简单的手工作业模式,波动性大,无法保持保量进行生产
4. 工序不平衡,异常多发
5. 整体效率与个别效率不分,生产无序
6. 员工技能单一,无标准作业可遵循,无节拍生产意识
三、规划实施
01
生产线构建
(1) 需求目标,节拍设定
(2) pq/pr分析
(3) ecrs法动作分析
(4) 流程分析,工序调整,平衡率改善
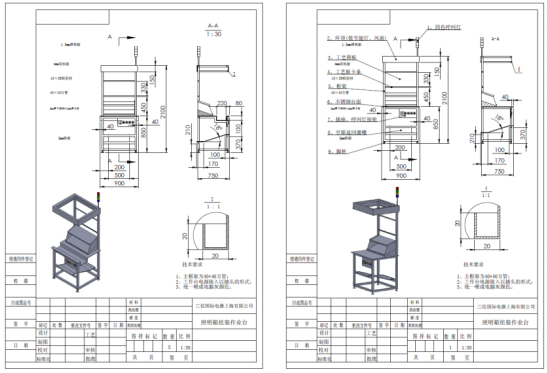
(5) 工序作业台设计
(6) u型产线设计

(图一:作业台设计)
对作业重新分配、工序平衡后,依据所需实现功能重新设置工作台的长宽高,设计新的精益工作台
(图二: u型产线设计)
参照产品工艺流程,新的作业台,构建连续流的u型生产线
02
车间布局优化设计
(1) 参照新的u型生产线,及生产节拍,规划产能需求,确定生产线数量
(2) 按生产需求,确定车间功能区域需求
(3) 确定大物流,确定生产线规划方向
(4) 车间整体规划实施
(图三、车间布局优化设计)
四、方案实施
五、实施成果
1. 实际生产使用面积下降48%,wip下降87%;
2. upph由5台/人时提升为7.3台/人时,生产效率提升46%;
3. 产品一次合格率平均提升至96%以上;
4. 直接生产成本节省约320万元/年

六、过程改善个案分享
1、铰链压装改善
2、自动螺丝机导入

3、铜轴承防漏工装改善

工程机械集团供公司精益管理战略案例
在项目落地过程中,博革咨询按照系统诊断、试点推行、树立标杆、快速复制,it固化、系统评价、能力内化等七个步骤对集团公司下属的17个子公司进行推进。 /news/4878.html
某线束工厂装配车间连续流生产线规划案例分享
生产线的升级解决了孤岛式批量生产的方式,实现了连续流生产模式,在线库存金额从60万降为10万,在制品从50000件降至5000件。车间在建设连续流生产方式时,遵循精益生产思想,通过连续流生产 /news/4876.html
某煤机集团防爆车标准化工位建设促进精益现场建设案例
自精益生产开展以来,原小库房存余的各型液压胶管共计2118根,通过统计、甄别、核减,现已消耗938根,核减率达到了44.3%,预计节约成本14万元。 /news/4875.html