- 万新电气有限公司
- 来源/作者:www.biglss.com 发布时间:2023-05-18 14:31:22 浏览次数:
凯发app的介绍:
万新电气有限公司始建于2004年,位于郑洛新国家自主创新示范区—新东产业集聚区,是国家高新技术企业、国家科技型中小企业、市规模以上工业企业、电力协会标委会成员单位。
万新电气占地40余亩,建筑面积3.8万平方米,拥有员工300余人,拥有国内优良电子产品生产线,先后与河南工学院、西安交大、 国网电科院、中电科等院校建立了深度的产学研合作。
万新智慧工厂以创新为核心竞争力,推行人才战略计划,现拥有各类优良技术人员90余人,其中工程师及以上40余人,各类优良技能人员50余人。并相继建立了“省市级工程技术研究中心”,相关发明50余项,申请科技成果20余项。多年来专注于电能质量、电力仪表、电子产品(oem与odm)的研发和制造,为肯尼亚、印度、波兰等国家长期提供可靠的凯发app的技术支持。公司是国内优先设计生产汽车点焊无功补偿控制器的厂家,系列产品销量更是处于行业领跑地位。
服务项目: 智能化规划
项目目标:
实现工厂数据规范化、标准化
生产车间、布局,信息化、数据化
多工厂多组织的资料完整配置
产品信息化,可配置,可扩展
项目内容:
本规划项目涉及对工厂进行整体规划,规划内容包含对车间精益布局规划、水电气设计与布局规划、车间物流agv配送规划、智能化电子仓库规划等服务内容,实现工厂数据规范化、标准化,可满足未来公司高速扩张的生产需求。
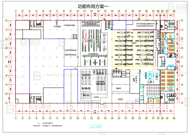
整体布局规划方案:
选择多样,提供三个方案供客户选择,最终结合整体投资回报分析,选择一版最合适企业战略发展的方案!
车间布局图
车间电力规划
布局实施计划-严控时间节点
agv配送规划
电子料仓smd智能料架方案:实现物资可视化管理,防止物资使用和归还错误,提高作业效率&准确率、追溯机制,提升精细化管理。
现场效果图:
项目预估效益:
必旺智能科技为万新电气量身打造一个精益化、智能化、自动化及信息化的现代化工厂。项目开展过程中得到客户各位领导和员工的高度认可和赞扬,车间人均效率提升20%,物流距离缩短40%,生产及仓储通过自动化设计人员减少5%,库容提升30%,生产现场5s及目视化管理显著提升。
苏州矿山机械领军企业精益改善优秀成果展现
博革于2021年10月正式与苏州创力达成合作,签署精益布局项目,旨在全面改造升级齿轮车间,历时4个月完成前期规划,另根据规划项目历时1年改造完成,现新车间已经投入使用,并且达到预期目标。 /news/4855.html
博革携手江东金具设备制造,精益咨询管理改善促生产
江东金具决定与上海博革咨询达成协议:由上海博革咨询为江东金具进行工厂布局规划和目视化设计工作。项目定位为打造绝缘子行业国内领先、行业标杆的智能化、自动化灯塔工厂。 /news/4866.html
国内ppe行业领军企业赛立特园区精益布局
博革自2022年起为赛立特提供精益管理服务,助力企业搭建精益管理体系,推动精益化管理落地见效,从而全面转型升级,提升企业竞争力。本次项目从2024年10月进驻,经过调研分析,围绕园区整布局 /news/4864.html